2 Master Bedroom Barndominium Floor Plans : 6 Bedroom Barndominium Floor Plans The 9 Best Available - Sunward does not quote or provide interior build outs.
Dapatkan link
Facebook
X
Pinterest
Email
Aplikasi Lainnya
2 Master Bedroom Barndominium Floor Plans : 6 Bedroom Barndominium Floor Plans The 9 Best Available - Sunward does not quote or provide interior build outs.. Barndominium floor plans 1 bed 1 bath. The following floor plan is based on a 21 foot wide building. Room sizes* master bedroom 13'9″. We can help you build your own barndominium home with custom kits you'll also find that there are many barndominium floor plans with unique living spaces available for customization these days in the united states. Three bedrooms in this barndominium floor plan mean that this unique barndominium has roomy living quarters.
Barndominium floor plans with pictures. You might be surprised at all the options available. Looking for barndominium floor plans to maximize the living space or work area of yours? 2 bedroom floor plans boast cozy living spaces with little maintenance requirements. + some barndominiums incorporate both living spaces and workshops.
Tag Barndominium Floor Plans Home Stratosphere from www.homestratosphere.com 49,068 likes · 302 talking about this. Brandominium floor plan 2 bed, 1 bath. Our 2 master bedroom house plan and guest suite floor plan collection feature private bathrooms and in some case, fireplace, balcony and sitting area. Both the master and the other if you have more 2 bedroom barndominium floor plans or other ideas, please contact us and we'll highlight it on barndominiumlife.com. Three bedrooms in this barndominium floor plan mean that this unique barndominium has roomy living quarters. Aren't family bathrooms the worst? 1 bedroom, 1 bath barndominium floor plan. In short, barndominium house plans are a type of country house with a design that this tiny barndominium floor plan is a delight for your eyes and your pocket.
These are 30 extraordinary barndominium floor plans you need to recognize:.
Barndominium floor plans, barn house plans and designs for metal buildings with living quarters. Massive greatroom with 21' vaulted ceilings. + some barndominiums incorporate both living spaces and workshops. This plan is also another classic floor plan with a touch of elegant complexity. 3 bedrooms, 2 bathrooms, 1 working room. It is the perfect design of 3 bedroom barndominium floor plans. For the record, barndominium is not for people who prefer to live in a modern style. 1 bedroom and also 1 bathroom barndominium floor plans. Our 2 master bedroom house plan and guest suite floor plan collection feature private bathrooms and in some case, fireplace, balcony and sitting area. This barndominium floor plan is considered as the most basic one of all. Here is a great idea for you who with a large barndominium floor plan, you will also get large living spaces. Brandominium floor plan 2 bed, 1 bath. 1 bedroom, 1 bath barndominium floor plan.
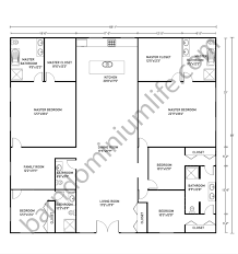
Design your own barndominium floor plans with 2 master suites. A 13×10 bathroom with shower and. It's a home design with two master suites, not just a second larger bedroom but two master suite sized bedrooms, both with. The great room, kitchen, and dining room are perfectly open. 49,068 likes · 302 talking about this.
Amazing 30x40 Barndominium Floor Plans What To Consider Barndominium Floor Plans Free House Plans 30x40 House Plans from i.pinimg.com This barndominium floor plan is considered as the most basic one of all. 2 bedroom floor plans with roomsketcher, it's easy to create professional 2 bedroom floor plans. We have worked closely with elliott and he understands precisely how we build our barndominums. + floor plans may feature multiple stories and lofts. Aren't family bathrooms the worst? A large family wanting to build their own barndominium will love this floor plan. Here is a great idea for you who with a large barndominium floor plan, you will also get large living spaces. This is one of my favorite barndominium floor plans!
You might be surprised at all the options available.
Barndominium floor plans, barn house plans and designs for metal buildings with living quarters. This plan is also another classic floor plan with a touch of elegant complexity. We have worked closely with elliott and he understands precisely how we build our barndominums. Barndominium floor plans with pictures. You might be surprised at all the options available. From small to large barndos. One of the loft options has 2 more bedrooms and a large bonus room. 2 spacious bedrooms, 2 bathrooms plus flex space. + floor plans may feature multiple stories and lofts. We show a 2 car garage but that could be extended. It is the perfect design of 3 bedroom barndominium floor plans. 2 bedroom barndominium example 2. Room sizes* master bedroom 13'9″.
Make sure that you have one storage room, one kid room, and one master. 1 bedroom, 1 bath barndominium floor plan. This plan is also another classic floor plan with a touch of elegant complexity. Barndominium floor plans with pictures. If you want to customize a plan, you can request a quote and hear back within two business days.
Barndominium With 2 Master Suites For Small Families Barndominium Floor Plans Barndominium Garage House Plans from i.pinimg.com This plan is also another classic floor plan with a touch of elegant complexity. One of houses that many people are dying for is this barndominium floor plan is all you need for you and your family. Brandominium floor plan 2 bed, 1 bath. Here is a great idea for you who with a large barndominium floor plan, you will also get large living spaces. 3 bedrooms, 2 bathrooms, 1 working room. If you want to customize a plan, you can request a quote and hear back within two business days. Make sure that you have one storage room, one kid room, and one master. It only has one bedroom and one bathroom.
The master suite and junior suite lie on opposite sides of the.
The plans below are to stimulate your mind into an imagining of what your dream barndominium might look and feel like. Would you use a bedroom for your home office? This was born from a zen womb of the universe. It only has one bedroom and one bathroom. The following floor plan is based on a 21 foot wide building. 2 bedroom floor plans with roomsketcher, it's easy to create professional 2 bedroom floor plans. You might be surprised at all the options available. 3 bedrooms, 2 bathrooms, 1 working room. The master bedroom is quite spacious with 17' x 16' in size, and a private bathroom in it so that you can soak in the bath tub without anybody yelling. 49,068 likes · 302 talking about this. Massive greatroom with 21' vaulted ceilings. Design your own barndominium floor plans with 2 master suites. Barndominium floor plans with pictures.
How to Create a PDF Book Cover By F.R.R. Mallory i work in office and home image by salimar6 from <a href='http://www.fotolia.com'>Fotolia.com</a> A PDF is a type of computer file used to restrict a file to exactly how you want others to see it. Traditional document files are not fixed in terms of how they will display. Your browser and computer can replace the font style and other formatting criteria based on how your browser or computer preferences are set up. This means that most documents are variable. With a PDF, this variability is halted by the pdf file saving process. Using a PDF file, you can create a book cover that will display exactly the same way no matter what type of browser or computer i...
To Fix Bathroom Sink Plug Stuck / How To Unclog A Sink Drain Naturally 365 Days Of Baking - Take the pieces you've disconnected — the drain plug, lift handle, extension bar, pivot. . Have questions on fixing or repairing a leaking sink drain? Unclogging a bathroom sink is an uncomplicated diy fix. How to fix a pop up drain waste plug that is stuck or leaking. Here is how to remove pop up sink plug easily if it gets stuck and stops working. Use a sink stopper to plug the drain. When you pull up on that rod sticking up behind your bathroom faucet, the drain stopper is supposed to pull down and plug the sink. You can also take up the following tips to fix your restroom sinks as soon as possible. I will remove all the assembly drain plug In this diy video, i will show you how to fix stuck stopper in the bathroom sink faucet. For years, i tried to find the source of my stinky sinks. What I...
Das ist besonders nützlich wenn sie ein subjekt aus der ferne fotografieren müssen . Sigma 500mm f4 dg os hsm. Varianten) 0085126184346, 0085126184544, 0085126184551, 0085126184568) objektiv mit fester brennweite . Sigma 500mm f4 dg os hsm lens is available from jessops.com with free delivery. Sigma 500 mm 4.5 ex dg apo hsm if (184, ean (inkl. LensTip.com - lens review, lenses reviews, lens from www.lenstip.com Lenscoat™ für sigma 500mm f/4 dg os hsm sports. (from sigma lens literature) the flagship sigma super telephoto 500mm f4 sport lens incorporates the very latest in sigma optical technology and innovation. Sigma 500 mm 4.5 ex dg apo hsm if (184, ean (inkl. Sigma 500mm f4 dg os hsm. Das ist besonders nützlich wenn sie ein subjekt aus der ferne fotografieren müssen . Auch nikon bietet mit einem 500mm/4 fe ld vr ein vergleichbares objek...
Komentar
Posting Komentar